









1/10
Moving Mountains Carl Fredrik Svens
¥16,280 税込
残り1点
別途送料がかかります。送料を確認する
この商品は海外配送できる商品です。
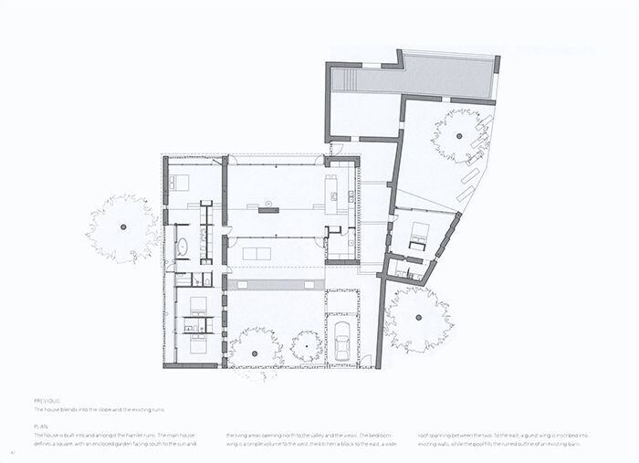
『Moving Mountains: Carl Fredrik Svenstedt Architects』 石を素材とする建築は、山を彫刻するような行為であり、時間と空間に深く根ざした構造を生み出す——本書は、そうした思想を体現する建築家カール・フレドリック・スヴェンステットによる作品集。ローマ時代の石切場から採取された石材を用いた建築は、風景と調和しながらも力強い存在感を放ち、素材の物質性と詩的な空間体験を融合させている。
前半では、スヴェンステット建築事務所による4つの実作を紹介。公共施設から家具デザインまで、スケールを横断する設計思想と職人技が随所に見られる。後半はスケッチブック的構成となっており、実現済み・未実現を問わず、建築的アイデアの断片が集められている。建築とは「構築」ではなく「構想」であるという視点から、空間の可能性を探る試みが展開される。
https://ideaweb2.ideabooks.nl/videos/250403-moving.mp4
英語表記、ペーパーバック、256ページ サイズ:約22 × 29 cm 出版社:Arvinius + Orfeus Publishing(2025年刊) ISBN:9789190045053
-
送料・配送方法について
-
お支払い方法について
最近チェックした商品
同じカテゴリの商品
その他の商品
CATEGORY