1/8

A.mag 40 Go Hasegawa

¥11,000 税込

残り1点

別途送料がかかります。送料を確認する

この商品は海外配送できる商品です。

『a.mag 40: GO HASEGAWA』
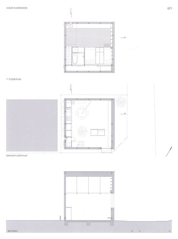
長谷川豪を特集しています。2005年に事務所を設立して以降、住宅から公共施設まで手がけてきた彼の歩みを、地域の文脈に根ざした空間言語として解明しています。巻頭ではロサンゼルスの建築家ジョンストン・マークリーによる序文を通じて、「先頭打者」としての役割を果たすその建築姿勢に光が当てられており、建築史への敬意を抱きつつ新しい文脈を創出する試みが丁寧に読む者へ提示されています。 収録内容は、15の選りすぐられたプロジェクトを取り上げ、森の中の住宅、五反田や練馬の集合住宅、駒沢や上尾の住宅、御徒町や川崎のプロジェクト、吉野杉の家、ニセコのICOR、さらにはイタリア・グアスタッラの礼拝堂や「飛行絨毯」など多様な事例が含まれています。各プロジェクトには高精細な図面・写真・スケッチが付され、設計者自身のテキストから空間詩を解釈できるよう構成されています。 ISBN:978-989-36284-1-6
出版社:AMAG PUBLISHER
ページ数:208ページ
サイズ:約320×240 mm
言語:英語・日本語・ポルトガル語併記
刊行年:2025年9月

商品をアプリでお気に入り
  • 送料・配送方法について

  • お支払い方法について

¥11,000 税込

最近チェックした商品
    同じカテゴリの商品
      その他の商品